Ваш баланс не активен. Вы можете принять участие в нашей партнёрской программе и использовать при оплате бонусы и баллы. Узнать подробнее
Исполнитель: Самсонов Сергей Сергеевич, 1975 гр.
Образование: высшее; инженер-строитель (ПГС). Опыт работы в дизайне интерьеров с 2004 года.
Навыки:
- разработка жилых и общественных Интерьеров (квартиры, таунхаусы, коттеджи, магазины, салон красоты, сауны, бассейны, гостиницы, Торговый центр «Гостиный Двор»);
- проектирование и реализации систем «Умного дома».Планировка, выполненная профессиональными дизайнерами позволит вам привлечь внимание покупателей и сократит сроки продажи объекта.
Вам теперь не обязательно заказывать полный пакет дизайн-проекта. Если по большей части вам известно типы отделочных материалов, которые вы будете применять в отделке, но присутственные места все-же требуется проработать дизайнером профессионально, тогда это для вас.
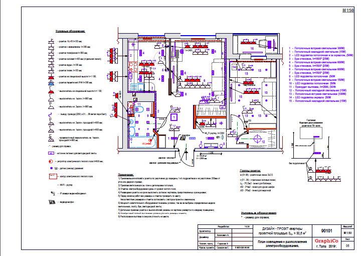
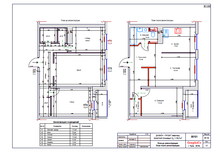
Данный проект включает варианты планировочных решений, основной пакет чертежей и визуализацию трех присутственных зон. Например таких как: прихожая, гостиная и кухня.
Стоимость: 750 р/м2.
После заказа услуги, вам будет предложено прикрепить документы и указать адрес объекта.
Включает обработку обмерочных данных и далее варианты планировок.
После утверждения планировки и уточнения параметров по стилистике, дизайнер приступает к визуализации выбранных помещений.
После утверждения эскизов разрабатываются основные чертежи проекта. Визуализация до 3-х помещений
Вы сможете скачать всю проделанную работу.



Хочешь застраховать свою профессиональную ответственность? Заполни форму ниже и наши специалисты расскажут подробности!
Есть вопросы? Напиши нам в Telegram
Оставьте заявку и узнайте, как получить больше выгоды при работе на первичном рынке!
Оставьте заявку и получите ответы на свои вопросы от специалиста Консультационного центра для риэлторов по вопросам ведения предпринимательской деятельности Макромира!
Возможность работы в личном кабинете ограничена. Обратитесь к региональному управляющему партнёру.
Скопируйте ваш промокод и начните заказывать услугу. Укажите промокод в соответстующем поле.
Или воспользуйтесь им позже. Мы уже выслали промокод на вашу почту!

Для того, чтобы отрыть страницу «Скрипты продаж», и получить доступ к технологиям переговоров, которые уже используют ведущие эксперты по недвижимости, заполните обязательные поля в своём аккаунте
Для того, чтобы получить «Аудитоскрипты», нужно заполнить дополнительные поля:
Ещё больше возможностей доступно для партнёров компании «Макромир»


После заказа «Базовый дизайн-проект» Вы сможете оставить свой отзыв